Nói tới phong cách thiết kế biệt thự tân cổ điển mọi người đều hình dung đến vẻ đẹp sang trọng quyền quý đặc sắc và độc đáo bởi sự kết hợp giữa nét cổ điển và hiện đại nó mang đến không gian sống đẳng cấp khẳng định vị thế của gia chủ.
Thiết kế 3D biệt thự 3 tầng mang phong cách tân cổ điển sang trọng
Để lựa chọn phong cách thiết kế cho ngôi nhà không gian sống của cả đời là một điều quan trọng hơn nữa tìm một đơn vị thiết kế kiến trúc uy tín vẽ lên không gian sống đúng ý thích của mình quý khách hàng cần tìm hiểu tham khảo từ rất nhiều nguồn khác nhau để lựa chọn. Hãy cùng kiến trúc maxxCons tìm hiểu về một công trình nhà biệt thự tân cổ điển 3 tầng ngay sau đây để tiếp thêm ý tưởng cho không gian sống của gia đình mình nhé!

Thiết kế biệt thự tân cổ điển 3 tầng của chủ đầu tư tại Quảng Nam với diện tích đất xây dựng 15x22m. Công trình biệt thự mang phong cách tân cổ điển, theo sở thích của gia chủ. Công trình đầy đủ công năng đủ để đáp ứng những nhu cầu cơ bản. Dùng để ở và để nghỉ dưỡng cho những lúc mệt mỏi của gia chủ.
>>>Xem thêm: Mẫu biệt thự tân cổ điển đẹp như một kiệt tác nghệ thuật

Mặt tiền của ngôi biệt thự tân cổ điển được thiết kế tinh sảo với cách trang trí hoa văn cầu kỳ tạo điểm nhấn. Cổng biệt thự được chia làm hai cổng : cổng chính và cổng phụ, cổng được thiết kế phù hợp với tổng thể công trình, vì vậy màu sắc cũng như họa tiết của cửa vào cổng cần phải dựa theo phong cách chung như lan can ban công, hàng rào để tạo sự hài hòa về phần nhìn.

Phù điêu hoa văn biệt thự được làm khá tỉ mỉ và kì công. Ngôi biệt thự như một tác phẩm đắp phù điêu hoa văn nổi bật được thể hiện với các chất liệu: Phù điêu hoa văn bằng Xi măng,Thạch cao tinh tế từng đường nét
Thiết kế chi tiết công năng bản vẽ 2D biệt thự tân cổ điển 3 tầng
Dưới đây là hình ảnh bố trí mặt bằng công năng sử dụng cùng bài trí không gian nội thất của ngôi biệt thự 3 tầng phong cách tân cổ điển đẹp này.

Mặt bằng không gian biệt thự tầng một với công năng chính gồm có: Lối vào sảnh chính, phòng khách, văn phòng làm việc, bếp và phòng ăn, không gian thư giãn và hồ bơi.

Tầng 2 của căn biệt thự đẹp sang trọng 3 tầng phong cách tân cổ điển gồm có các phòng chức năng chính: phòng sinh hoạt chung, bếp, phòng ngủ và phòng thay đồ...

Mặt bằng bố trí công năng tầng 3 với không gian chính là phòng ngủ, phòng Gym, xông hơi và khoảng sân thượng

Mặt bằng tầng mái

Mặt bằng tầng hầm để xe và nhà kho

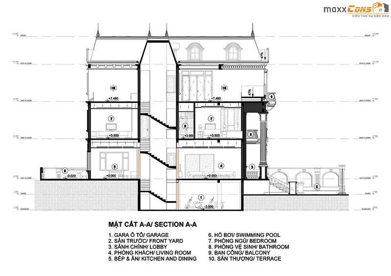
Mặt cắt không gian biệt thự 3 tầng tân cổ điển sang trọng

Phối cảnh tổng thể căn biệt thự 3 tầng tân cổ điển đẳng cấp
Ngôi biệt thự được thiết kế sử dụng công năng hết toàn diện tích đất với diện tích xây dựng công năng và sân vườn đảm bảo việc sinh hoạt đáp ứng nhu cầu cần thiết cho gia đình chủ đầu tư

Tổng thể ngôi biệt thự được thiết kế sắc nét không chỉ ở mặt tiền mà ở mọi góc cạnh đều được chăm chút tỉ mỉ hài hòa cân đối đầy tiện nghi và sang trọng

Các quý độc giả thân mến trên đây là tổng thể mẫu thiết kế biệt thự 3 tầng tân cổ điển với diện tích xây dựng 15x22m đã thể hiện toàn bộ công năng tiện nghi và đẳng cấp của căn biệt thự sang trọng mà nhiều người mơ ước. Cũng là một mẫu biệt thự tân cổ điển mà maxxCons muốn giới thiệu tới quý khách hàng cùng tham khảo để có nhưng quyết định và ý tưởng tuyệt vời nhất cho không gian sống của mình.
Kiến Trúc maxxCons
>>>Xem ngay: +86 mẫu thiết kế biệt thự tân cổ điển sang trọng nhất hiện nay