Nhà phố 38m² trong hẻm nhỏ vẫn rộng thoáng và ngập tràn bóng nắng, đẹp không kém nhà trong phim ở Quận Gò Vấp, TP. HCM

Ngôi nhà dù có diện tích khiêm tốn chỉ 38m² nhưng nhờ những giải pháp thông minh của các KTS, từng không gian vừa rộng rãi vừa ngập tràn ánh sáng và không khí trong lành.
Ngôi nhà được xây dựng trên khu đất có diện tích nhỏ nằm trong con hẻm rộng hơn 3m. Mảnh đất có kích thước khá phổ biến trong đô thị Việt Nam. Bài toán đặt ra cho các KTS chính là không đi theo cách thiết kế thông thường.
Nhà phố được xây theo kết cấu nhà ống phổ biến sẽ có khá nhiều bất cập thường thấy, bí bách, thiếu sáng, cảm giác ngột ngạt và chật chội.

Không gian mặt tiền như tách biệt với khoảng ngõ hẻm chật hẹp nhờ gạch hoa gió. Để giải quyết những nhược điểm trên, điều mà các KTS chú trọng khi thiết kế công trình này chính là việc thông gió, lấy sáng cho ngôi nhà cũng như việc cản tầm nhìn trực tiếp từ ngôi nhà đối diện khi đường hẻm khá nhỏ.

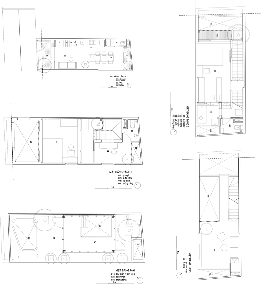
Một lát cắt để thấy được các khoảng thông tầng tạo sự thoải mái, dễ chịu cho mọi người sống trong nhà.

Sơ đồ bố trí mặt bằng các khu vực chức năng.
Giải pháp mà các KTS đưa ra chính là nhường một phần diện tích phía trước để trồng cây xanh sau lớp vật liệu hoa gió và thiết kế giếng trời nhỏ phía sau để đảm bảo sự tiện dụng cho cuộc sống sinh hoạt hàng ngày.
Nhờ vào sự kết hợp những mảng xanh một cách khéo léo, ngôi nhà không chỉ được tận hưởng ánh sáng thông thoáng, không khí trong lành gần gũi với thiên nhiên mà còn tạo nên chốn riêng tư cho mọi người. Đặc biệt là trẻ nhỏ hoàn toàn có thể tận hưởng không gian yên bình, vui chơi thỏa thích và cảm nhận rất rõ về cuộc sống xung quanh mình cũng như khí hậu, thời tiết.

Khu vực tầng trệt được bố trí phòng khách, không gian ăn uống hàng ngày.

Góc phòng khách có khoảng thông tầng nhỏ xinh trồng cây xanh.

Không gian tiếp nối với khu vực bếp và tầng lửng.

Bếp nấu hiện đại, tiện nghi.

Cầu thang được kết nối linh hoạt.
Khu vực cầu thang được bố trí một vế thay đổi liên tục, bên cạnh đó là khoảng thông tầng ở khu vực tầng lửng giúp không gian sống như nằm ở trong lòng thiên nhiên.
Khu vực tầng hai được các KTS thiết kế dành riêng diện tích một tầng cho phòng ngủ master và nơi thư giãn, không gian tắm liên thông với phòng ngủ, cây xanh giúp cho cặp vợ chồng trẻ cảm thấy thoải mái hơn sau một ngày làm việc vất vả.

Góc nghỉ ngơi riêng tư trên tầng 2. Góc thông tầng mang lại sự thoải mái, gần hơn với thiên nhiên.

Góc giếng trời mang nhiều ánh sáng vào nhà. Gạch hoa gió tách biệt không gian bên trong với con hẻm đông đúc bên ngoài.

Góc phòng nghỉ ngơi đẹp mắt khi nhìn từ khung kính ra ngoài.

Gia chủ của ngôi nhà là người ở tỉnh xa vào Sài Gòn lập nghiệp. Với sự đồng cảm đó, khu vực nhà kính ở tầng mái được các KTS nghiên cứu và thiết kế thành nơi thư giãn, ngắm mưa, hóng gió, tận hưởng vẻ đẹp trong lành của cây xanh hay vẻ đẹp của bầu trời khi về đêm. Đây cũng chính là nơi có thể tạo cơ hội cho con trẻ tiếp xúc với thiên nhiên qua những câu chuyện ngày xửa ngày xưa.

Cây cối luôn là một phần tạo nên vẻ đẹp cho không gian.

Mỗi không gian đều được tối giản hóa để mặt sàn rộng thoáng nhiều hơn so với diện tích thực.

Khu vực phòng tắm đẹp lãng mạn, thoáng sáng và ngập tràn cây xanh.
Không gian sống cũng là nơi vô cùng tuyệt vời để mọi người có thể làm việc, sinh hoạt, ăn uống hay đọc sách cùng nhau với những giá trị tuyệt vời từ kiến trúc và bố trí công năng.