maxxCons giới thiệu với độc giả và quý khách hàng mẫu thiết kế nhà phố đẹp hiện đại 4 tầng dưới đây là phối cảnh mặt tiền mẫu nhà phố nhà ống và mặt bằng công năng các tầng các bạn cùng chúng tôi tham khảo ở dưới nhé!

Kiến trúc nhà phố với mặt tiền hiện đại có khoảng tiểu cảnh sân vườn ở ban công tầng 2 rộng thoáng nhiều cây xanh. Lan can kính ban công kết hợp với tông màu trắng và ghi toát lên vẻ đẹp hiện đại thanh lịch và ấn tượng

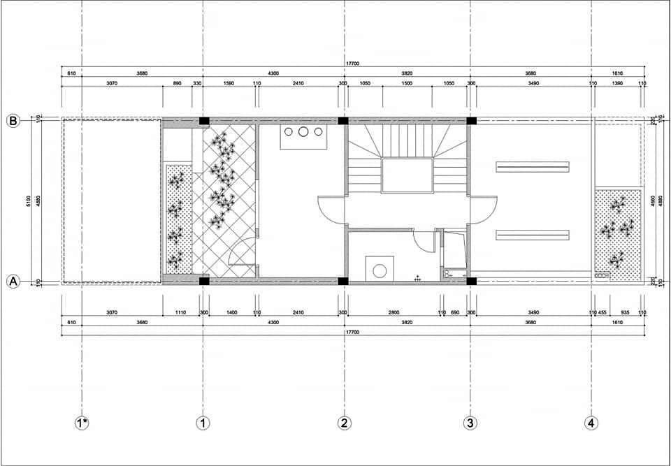
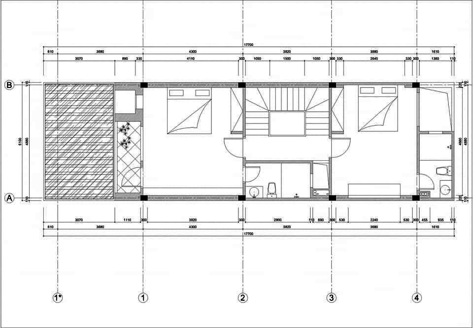
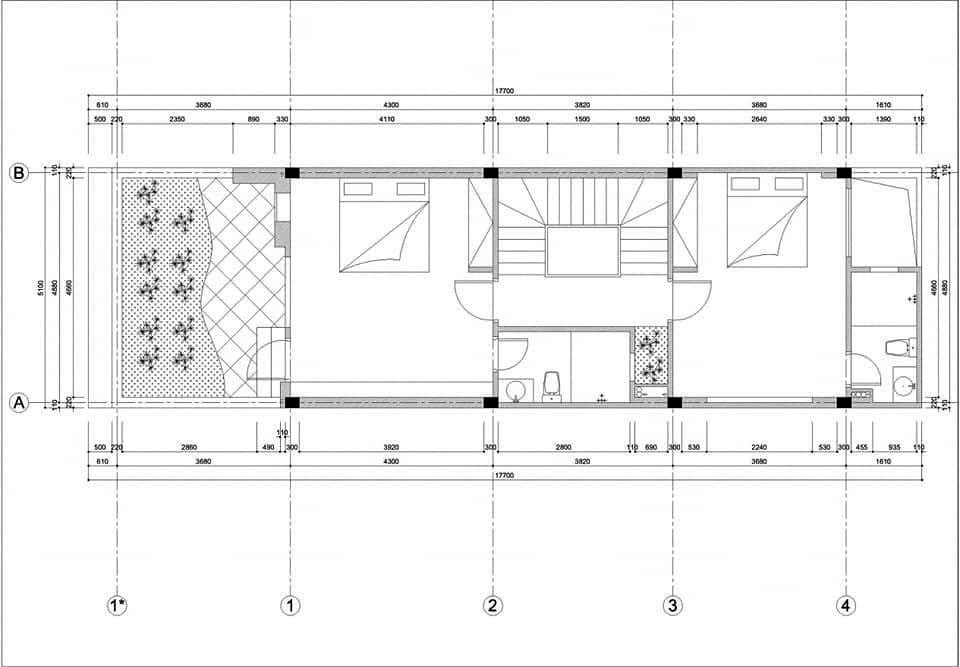
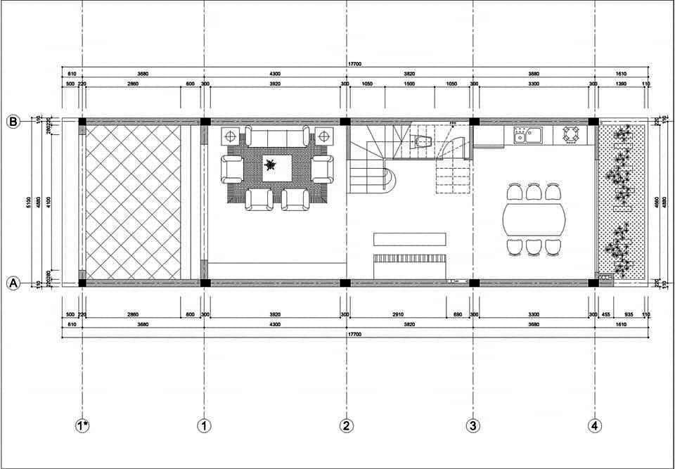
Dưới đây là mặt bằng bản vẽ bố trí công năng các tầng

Tầng 4 không gian phòng thờ và phòng giặt phơi

Mặt bằng tầng 3 gồm 2 phòng ngủ 2 vệ sinh

Tầng 2 cũng giống tầng 3 với cách bố trí 2 phòng ngủ và 2 vệ sinh riêng

Tầng 1 là không gian bếp và phòng ăn
maxxCons - Kiến trúc & Xây dựng
Trụ sở : số 38 ngõ 111 Nguyễn Xiển, Thanh Xuân, Hà Nội
Hotline : 0903229996 - 0902442004