maxxCons giới thiệu với bạn đọc một mẫu thiết kế biệt thự hiện đại có thác nước độc đáo tại Tỉnh Vĩnh Phúc. Không chỉ kết nối các bậc địa hình, thác nước trong nhà tạo nên điểm nhấn chính và góp phần giải nhiệt cho công trình.

Biệt thự trên mảnh đất 1.000 m2 ở Tam Đảo là tổ ấm của một đôi vợ chồng cùng hai con nhỏ, thường xuyên đón ông bà đến thăm. Họ mong muốn một không gian "mở", nhiều kết nối với thiên nhiên và giữa các thành viên.
Bên cạnh đó, vì công trình nhìn xuống đồi cỏ và hố cát, xung quanh lại có rừng thông, gia chủ không muốn tác động nhiều đến cảnh quan để tận hưởng thiên nhiên và khí hậu.

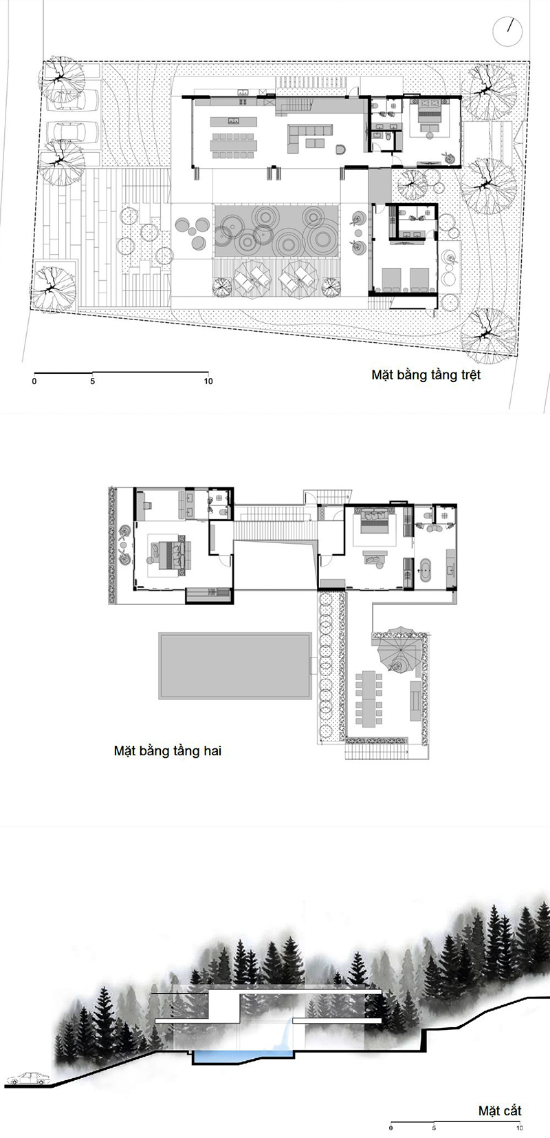
Nhằm đáp ứng các yêu cầu trên, các kiến trúc sư đưa ra cấu trúc băng ngang gồm khối nhà một tầng và khối nhà hai tầng đặt vuông góc, đan vào nhau.

Bố cục các khối nhà giúp toàn bộ công trình đều thông thoáng, không bị nắng gắt vào buổi chiều mà vẫn đón được bình minh buổi sớm. Các bậc địa hình khác nhau đem tới nhiều góc nhìn sinh động.
Hệ cửa kính lớn dài 6 m có thể mở hết cỡ, nhờ đó mọi không gian đều "mở" và ngập nắng, gió.

Điểm nhấn chính của công trình là thác nước lớn đổ từ mái khối nhà một tầng xuống bể bơi kích thước 4 x 12 m.

Không chỉ tạo cảnh quan, thác nước còn kết nối các bậc địa hình và góp phần làm mát căn nhà. Nó đòi hỏi hệ thống tuần hoàn với bể bơi, bơm áp lực cao và được điều chỉnh hoạt động tùy theo ý muốn chủ nhà.
Bên cạnh bể bơi có sàn gỗ đặt ghế nằm và lối đi dẫn lên khu vực bàn ăn ngoài trời ở mái khối nhà tầng một.

Phòng khách thông với phòng bếp, nằm dọc theo bể bơi. Nội thất đơn giản với màu xám, trắng, nâu gỗ tạo vẻ hiện đại và thoáng đãng. Sàn màu bê tông kéo dài từ trong nhà ra sân làm mờ ranh giới giữa bên trong và bên ngoài.

Khu vực sinh hoạt chung có diện tích lớn, kết hợp với khoảng thông tầng tạo thành "trái tim" của ngôi nhà, kết nối mọi không gian xung quanh.

Bốn phòng ngủ nằm ở hai tầng nhà đều được tận hưởng khung cảnh thiên nhiên.
 

Vào chiều tối, màu sáng của các băng ngang kết hợp với màu gỗ của nột thất và ánh đèn vàng tạo nên chiều sâu về không gian.

Có phần đế và bậc lên biệt thự làm từ đá tự nhiên, căn nhà nổi bật mà vẫn hòa hợp với tông màu đậm của khu rừng.
					
								
BÌNH LUẬN:
smawayday - 12/10/2022 lúc 04:34 -
Yates did not mention the use of aromatase inhibitors Nolvadex was more prevalent at the time but it is likely that he reduced his testosterone dose to a minimal dose effective for his goals, and discontinued the Deca nandrolone and Dianabol to minimize the presence of aromatizable steroids testosterone and Dianabol, as well as the estrogenic and progestinic stimulation evoked by nandrolone lasix 40 mg