Dù diện tích không lớn nhưng ngôi nhà vẫn đáp ứng được nhu cầu của gia chủ về không gian sống tươi mới, thoải mái và phóng khoáng.

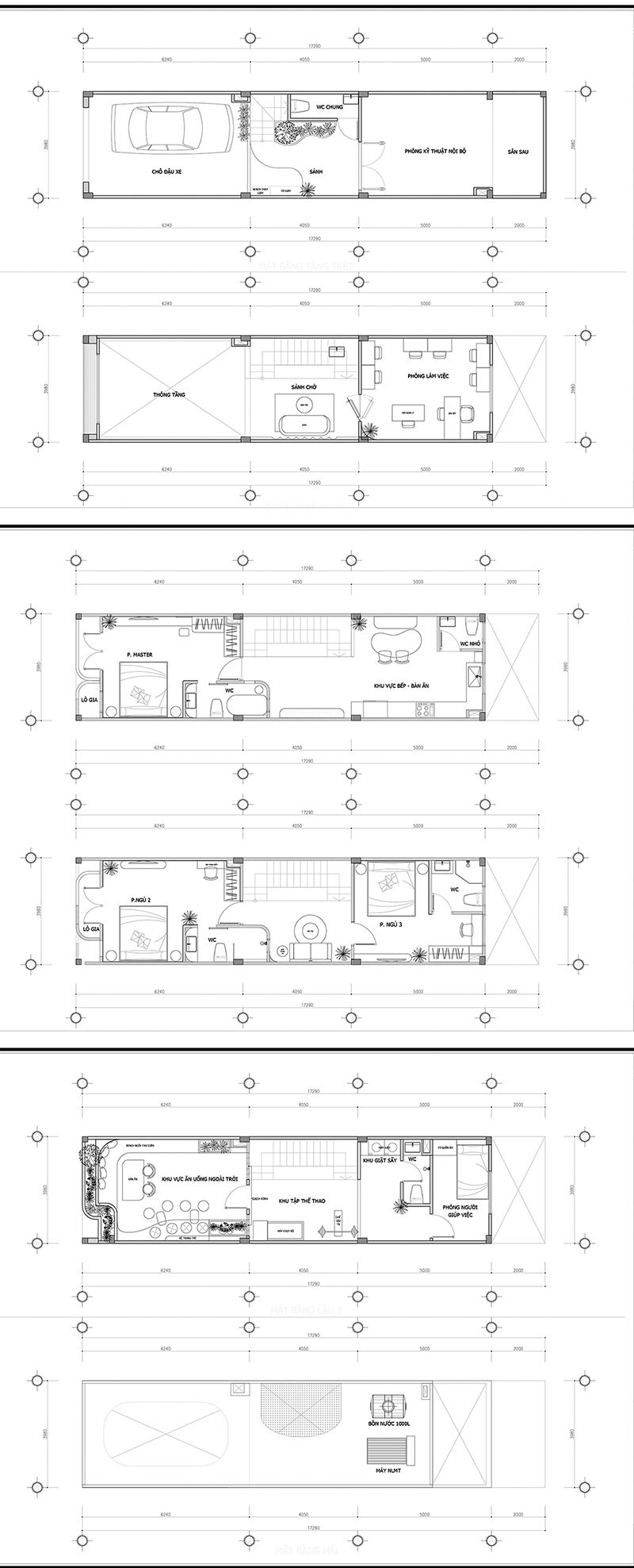
Căn nhà phố 60 m2 gồm một trệt, một lửng, hai lầu của một gia đình ba người tại phường Bình Hưng Hòa, quận Bình Tân.
Tầng trệt và lửng dùng làm không gian cho văn phòng, tầng một là nhà bếp và phòng ngủ master, tầng hai là phòng ngủ cho con trai và khách, sân thượng là nơi tụ họp bạn bè.

Chủ nhà là người trẻ, thích sự mới mẻ nên mong muốn có một không gian sống phóng khoáng, hiện đại. Với tiêu chí trên, nhóm kiến trúc sư đã thiết kế căn nhà pha trộn giữa sự trẻ trung của phong cách Hiện đại (Modern) và sự phóng khoáng của phong cách Địa Trung Hải (Mediterranean).
Phong cách thiết kế Địa Trung Hải thường nhấn mạnh vào không gian rộng, có diện tích lớn với mái vòm, cổng vòm, vườn cây và những đường nét kiến trúc hoành tráng cả không gian bên trong cũng như bên ngoài. Tuy nhiên, vì diện tích nhà không lớn nên nhóm kiến trúc sư nhấn mạnh vào mặt tiền với nhiều hình vòm đặc trưng kết hợp đường cong và những mảng xanh để tạo cảm giác rộng rãi mà vẫn phù hợp diện tích, ngân sách cũng như cá tính bay bổng của gia chủ.

Màu sắc chủ đạo trong nhà là màu trắng của tường, điểm xuyết thêm những màu như đỏ sẫm của đất nung, nâu của gỗ và lá khô. Đây là những gam màu đặc trưng của phong cách Địa Trung Hải, tạo sự vui tươi, mộc mạc và tự nhiên nhất cho không gian.
Những ô tròn xuất hiện liên tục trong nhà ngoài tạo tính thẩm mỹ, còn là những vị trí lấy sáng và gió tự nhiên, đảm bảo không gian luôn thông thoáng, mát mẻ.

Khu vực bếp được thiết kế đón nắng và gió trời từ cửa sổ khiến căn nhà lúc nào cũng ngập tràn ánh sáng.
Những chi tiết theo phong cách Địa Trung Hải được thể hiện ở khung cửa vòm, đà gỗ, sơn hiệu ứng đất nung và những chiếc đèn trang trí với kỹ thuật đan macrame... tạo nên không gian bình yên mà không nhàm chán.

Một trong những sức hút đặc biệt của phong cách Địa Trung Hải là nét mộc mạc vùng đồng quê. Để tạo nên vẻ đẹp ấy, nội thất được lựa chọn mang phong cách Âu châu cổ điển nhưng không cầu kỳ, rườm rà mà hướng đến sự tinh gọn, đơn giản và tiện ích.
Nội thất sử dụng là gỗ công nghiệp kết hợp gỗ sồi. Gỗ sồi có kết cấu chắc chắn, ít cong vênh hay biến dạng. Ngoài ra gỗ sồi còn chống mối mọt tốt nên phù hợp làm nội thất nhà phố.

Ánh sáng thiên nhiên ngập tràn không gian sống là đặc điểm nổi bật dễ nhận thấy của phong cách Địa Trung Hải. Với cách bố trí hệ cửa dày và tương đối lớn, mỗi góc nhỏ trong nhà đều được đón tối đa ánh sáng.
Trong xu thế kiến trúc hiện đại, yếu tố này được đánh giá cao bởi giúp tiết kiệm điện năng, thân thiện với môi trường và tốt cho sức khỏe gia chủ.

Phòng ngủ hướng tới sự đơn giản và tự nhiên, mang lại sự thoải mái nhất khi sử dụng.
Không gian nội thất kiểu Địa Trung Hải được bố trí dàn trải, không có sự đối xứng. Nội thất trong phòng ngủ thường thấp, có giá đỡ hoặc được trang trí kỹ lưỡng phần chân. Màu sắc trong phòng kết hợp giữa màu gỗ và màu đỏ sẫm của đất nung tạo cho người ở cảm giác gần gũi, ấm cúng.

Tường nhà vệ sinh được bo cong mềm mại làm cho không gian có sự luân chuyển nhịp nhàng, khắc phục điểm yếu diện tích hẹp của công trình.
Một mảng tường được thay thế bởi gạch kính, mục đích đón ánh sáng tự nhiên từ giếng trời giúp giảm bớt sự bí bách và thông thoáng hơn cho không gian.

Giếng trời thông từ tầng một lên mái cũng là hình thức kết nối các tầng với nhau.
Tại tầng trệt, nhóm kiến trúc sư tận dụng được ánh sáng tự nhiên ở khu vực giếng trời kết hợp với đèn mặt trời để trồng cây dưới chân cầu thang, tạo nét xanh tươi cho không gian sống.

Trong thiết kế nhà phố hiện nay, sân thượng hay bị lãng quên, nhưng với ngôi nhà này, sân thượng là một điểm nhấn.
Nhà mang phong cách Địa Trung Hải thường có sân vườn rộng rãi, thoáng đãng và ngập tràn ánh sáng mặt trời. Tuy nhiên với diện tích đất không cho phép để làm một khoảng vườn nên sân thượng được đầu tư thành khu thư giãn nhỏ. Những mảng tường gồ ghề, cây xanh mang đậm chất du mục và phần mái được tạo điểm nhấn bằng những cây khô cùng đèn cói đã tái hiện không gian hoang sơ và bình yên trong lòng thành phố.

Mái che sân thượng được thiết kế từ những thanh gỗ tràm cố định trên khung sắt vừa để hạn chế ánh nắng trực tiếp vừa tạo phong cách Địa Trung Hải đặc trưng.
Bên trên mái, nhóm kiến trúc sư đã thiết kế thêm một phần mái trong suốt bằng Polycarbonate để tránh nước mưa trực tiếp tạt vào sân thượng. Những hạng mục nội thất ở không gian này đều sử dụng những vật liệu ngoài trời, đảm bảo được công năng và bền bỉ theo thời gian.

Bản vẽ công trình.
Ngôi nhà thiết kế và thi công trong 8 tháng, tổng chi phí 3,1 tỷ đồng.
Nguồn : Theo báo Vnexpress