Biệt thự mái Nhật đang trở thành xu hướng thiết kế nhà ở được ưa chuộng tại Việt Nam nhờ vẻ đẹp thanh lịch, tinh tế và phù hợp với điều kiện khí hậu. Với sự kết hợp hài hòa giữa phong cách truyền thống và hiện đại, thiết kế biệt thự mái Nhật không chỉ mang đến không gian sống đẳng cấp mà còn đảm bảo sự tiện nghi, thoải mái cho gia chủ. Trong bài viết này, maxxCons sẽ cùng bạn khám phá chi tiết về mẫu biệt thự mái Nhật đẹp, từ kiến trúc đến công năng sử dụng, giúp bạn có cái nhìn toàn diện trước khi lựa chọn thiết kế cho ngôi nhà của mình.

1. Biệt thự mái Nhật là gì?
Biệt thự mái Nhật là phong cách kiến trúc lấy cảm hứng từ những ngôi nhà truyền thống của Nhật Bản, kết hợp với thiết kế hiện đại để phù hợp với nhu cầu sinh hoạt ngày nay. Đặc điểm nổi bật của mẫu biệt thự này là hệ mái có độ dốc vừa phải, mở rộng ra các phía giúp thoát nước tốt, đồng thời tạo nên sự thanh thoát, trang nhã cho tổng thể ngôi nhà.

So với mái Thái có độ dốc lớn, biệt thự mái Nhật có thiết kế nhẹ nhàng hơn, phù hợp với điều kiện thời tiết Việt Nam, giúp hạn chế hấp thụ nhiệt vào mùa hè và thoát nước nhanh vào mùa mưa. Ngoài ra, mái Nhật cũng có tính linh hoạt cao khi có thể ứng dụng cho nhiều phong cách khác nhau như hiện đại, tân cổ điển hoặc nhà vườn.
2. Ưu điểm của thiết kế biệt thự mái Nhật
2.1. Tính thẩm mỹ cao, sang trọng và tinh tế
Biệt thự mái Nhật mang vẻ đẹp hài hòa, thanh lịch với những đường nét tối giản nhưng vẫn đảm bảo sự sang trọng, đẳng cấp. Hệ mái có độ dốc nhẹ kết hợp với các chi tiết kiến trúc tinh tế giúp tổng thể công trình trở nên mềm mại, trang nhã và phù hợp với nhiều gu thẩm mỹ khác nhau.
2.2. Công năng tối ưu, phù hợp với khí hậu Việt Nam
Thiết kế mái Nhật giúp chống nóng hiệu quả vào mùa hè và thoát nước nhanh vào mùa mưa, hạn chế tình trạng thấm dột, nấm mốc. Ngoài ra, hệ mái mở rộng cũng giúp che chắn tốt cho phần hiên nhà, bảo vệ công trình bền đẹp theo thời gian.

2.3. Linh hoạt trong thiết kế, phù hợp nhiều diện tích đất
Dù là biệt thự sân vườn rộng rãi hay nhà phố có diện tích hạn chế, mái Nhật vẫn có thể được ứng dụng linh hoạt để đảm bảo tính thẩm mỹ và công năng sử dụng. Chủ đầu tư có thể kết hợp mái Nhật với phong cách hiện đại hoặc tân cổ điển để tạo điểm nhấn riêng biệt.
2.4. Độ bền cao, dễ bảo trì
Nhờ thiết kế độ dốc vừa phải, chất liệu sử dụng cao cấp, biệt thự mái Nhật có tuổi thọ cao, ít bị ảnh hưởng bởi thời tiết khắc nghiệt. Bên cạnh đó, quá trình bảo trì, vệ sinh mái cũng đơn giản hơn so với mái Thái hay mái bằng.
3. Mặt bằng công năng mẫu biệt thự mái Nhật hiện đại
Mẫu biệt thự mái Nhật của maxxCons được thiết kế theo phong cách hiện đại, tối ưu công năng sử dụng và tạo không gian sống thoải mái cho gia đình. Dưới đây là phương án bố trí mặt bằng chi tiết:
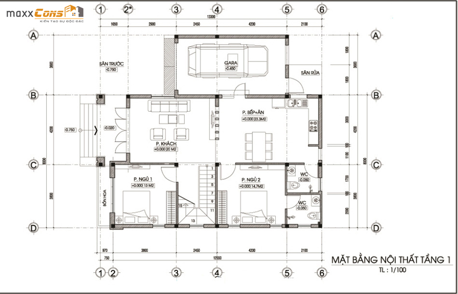
3.1. Mặt bằng tầng 1 – Không gian sinh hoạt chung tiện nghi
Tầng 1 được thiết kế với không gian mở, kết nối các khu vực chức năng một cách hài hòa. Phòng khách rộng rãi được đặt ngay lối vào, là nơi đón tiếp khách và sinh hoạt chung của gia đình. Tiếp nối là khu vực bếp và phòng ăn, thiết kế mở giúp tận dụng ánh sáng tự nhiên, tạo cảm giác thông thoáng. Ngoài ra, tầng 1 còn bố trí 2 phòng ngủ dành cho người lớn tuổi, đảm bảo sự thuận tiện khi di chuyển.

Bên cạnh đó, gara ô tô được tích hợp ngay trong nhà, có lối đi riêng giúp đảm bảo sự thuận tiện và an toàn. Khu vực sân rửa phía sau hỗ trợ việc nội trợ, giặt giũ mà không ảnh hưởng đến không gian sinh hoạt chính.
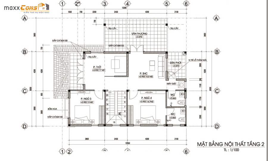
3.2. Mặt bằng tầng 2 – Không gian riêng tư và thư giãn
Tầng 2 là khu vực nghỉ ngơi và thư giãn với 2 phòng ngủ rộng rãi, mỗi phòng đều có cửa sổ lớn đón ánh sáng tự nhiên và thông gió tốt. Phòng sinh hoạt chung được bố trí ở trung tâm, là nơi cả gia đình quây quần bên nhau. Ngoài ra, khu vực phòng thờ được thiết kế riêng biệt, đảm bảo sự trang nghiêm, yên tĩnh.

Đặc biệt, sân thượng rộng rãi là không gian lý tưởng để trồng cây xanh, thư giãn hoặc tổ chức những buổi tiệc nhỏ ngoài trời. Phòng giặt và sân phơi cũng được bố trí hợp lý, đảm bảo công năng sử dụng.
4. Vật liệu và màu sắc trong thiết kế biệt thự mái Nhật
4.1. Lựa chọn vật liệu bền đẹp, hiện đại
Vật liệu sử dụng trong biệt thự mái Nhật thường là gạch, đá tự nhiên, kính cường lực kết hợp với gỗ công nghiệp để tạo nên sự hài hòa giữa hiện đại và truyền thống. Hệ mái sử dụng ngói sóng hoặc ngói phẳng cao cấp, giúp tăng tính thẩm mỹ và độ bền cho công trình.
4.2. Bảng màu tinh tế, trang nhã
Màu sắc trong thiết kế biệt thự mái Nhật thường là gam màu trung tính như trắng, xám, be kết hợp với điểm nhấn từ gỗ hoặc đá tự nhiên để tạo cảm giác ấm áp, sang trọng. Những đường nét tối giản, tinh tế giúp biệt thự luôn giữ được vẻ đẹp theo thời gian.
5. maxxCons – Đơn vị thiết kế, thi công biệt thự mái Nhật chuyên nghiệp
Với nhiều năm kinh nghiệm trong lĩnh vực thiết kế và thi công biệt thự, maxxCons tự hào mang đến những công trình chất lượng cao, đáp ứng nhu cầu và mong muốn của khách hàng. Chúng tôi cam kết:
- 
Thiết kế độc đáo, tối ưu công năng, phù hợp phong thủy 
- 
Thi công trọn gói, đảm bảo tiến độ và chất lượng 
- 
Sử dụng vật liệu cao cấp, bền vững theo thời gian 
- 
Dịch vụ tư vấn chuyên nghiệp, tận tâm 
Nếu bạn đang tìm kiếm một đơn vị thiết kế và thi công biệt thự mái Nhật uy tín, hãy liên hệ ngay với maxxCons để được tư vấn chi tiết và nhận báo giá tốt nhất!
 
					
								 
										
									 
											
										 
											
										 
											
										 
											
										 
											
										 
											
										