Mẫu thiết kế nhà phố đẹp với mặt tiền hướng tây biến hóa phù hợp với yêu cầu của chủ nhà chính vì thế mà căn nhà vào mùa hè không quá nóng nhờ thiết kế mặt tiền ấn tượng này, hãy cùng maxxCons khám phá căn nhà độc đáo này bạn nhé!
Hệ lam động vừa tránh nắng cho công trình, vừa thay đổi mặt tiền tùy theo nhu cầu, hoạt động của con người bên trong.

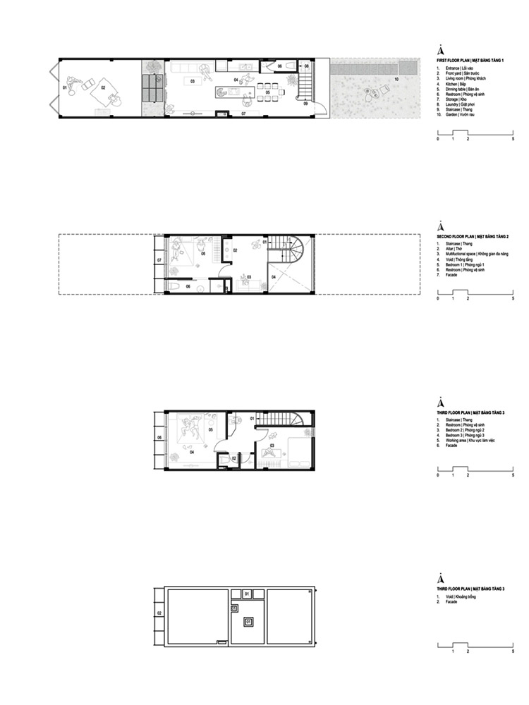
Ngôi nhà trên khu đất 4 x 24 m trong một khu tái định cư ở Nha Trang dành cho gia đình ba thế hệ.
Cũng như nhiều nơi, thành phố này đang đối mặt với hai vấn đề là mất đi những nghề truyền thống như nghề chài lưới và đô thị phát triển quá nhanh kéo theo bất động sản mọc lên ồ ạt, bất quy tắc.
Với mục đích tạo nên một công trình mang tính xã hội về nhà ở tái định cư, ngành nghề truyền thống và vật liệu tái chế, nhóm thiết kế đã đề xuất một ngôi nhà nhỏ nhưng tối ưu diện tích sử dụng, thay vì xây nhà to nhất có thể.

Diện tích xây dựng chỉ chiếm khoảng một phần ba khu đất, còn lại dành chỗ cho sân trước và sân sau. Tại những khoảng sân này, các thành viên quây quần bên nhau, người lớn đan lưới còn trẻ con chơi đùa.

Việc chừa sân còn thể hiện sự khiêm tốn với bối cảnh xung quanh. Phía trên sân có mái che để mọi người không lo nắng gắt.

Nhà hướng Tây, lợi thế là đón được gió Tây Nam - nguồn gió chính ở Việt Nam nhưng chịu bức xạ nhiệt vào buổi chiều. Để giải quyết vấn đề đó, nhóm thiết kế bố trí một hệ lam có cấu trúc động.

Nhờ hệ lam, nắng Tây không còn truyền nhiệt trực tiếp vào trong nhà. Gia chủ cũng dễ dàng điều chỉnh góc độ hệ lam để mở rộng "view" vào sáng, trưa, tối.

Khác với hệ lam thông thường cố định, mặt tiền ngôi nhà có thể thay đổi linh hoạt tùy theo diễn biến thời tiết, nhu cầu sinh hoạt của con người bên trong.

Hệ lam động lấy cảm hứng từ hình tượng hàng hiên, mái đón trong kiến trúc nhà chồ ven sông cũng nhằm đưa người sử dụng đến gần hơn với những điều giản dị nhất.

Với mục đích kế thừa những giá trị từ ngôi nhà cũ để lưu giữ những cảm giác thân quen và hoài niệm, công trình sử dụng ván gỗ từ ngôi nhà cũ làm thành đồ nội thất như bếp, sofa, bậc thang.

Thay vì bị vứt bỏ và gây áp lực cho môi trường, những vật liệu cũ giờ đây có cuộc sống mới.

Bên cạnh vật liệu cũ, phần hoàn thiện với tường gạch thô và bê tông trần tiết kiệm chi phí xây dựng cho ngôi nhà và giúp không gian trở nên thô mộc, thân thuộc hơn.

Công trình được thiết kế và hoàn thành vào năm 2019.