maxxCons - Giới thiệu với bạn đọc mẫu thiết kế nhà phố 4 tầng với thiết kế hiện đại ngập tràn cây xanh thông thoáng tràn ngập ánh sáng nhờ giếng trời độc đáo. Khoảng thông tầng cong, đặt giữa nhà giúp mọi phòng ngủ đều có hai mặt thoáng và sáng sủa. Gia chủ chỉ phải dùng đèn điện sau 17h.
Dưới đây là hình ảnh toàn bộ mẫu nhà lô phố hiện đại mời bạn đọc cùng tham khảo

Căn nhà 100 m2 ở quận Bình Tân là giải pháp cho một gia đình đông người, con cái dù đã kết hôn nhưng vẫn ở chung với bố mẹ vì chưa đủ điều kiện ra ở riêng.
Những căn nhà đông người, nhiều phòng ngủ thường có nhược điểm là bí, giảm liên kết giữa các thành viên. Để giải quyết các vấn đề này, kiến trúc sư đã đưa ra thiết kế thông thoáng cả về chiều ngang lẫn chiều đứng.

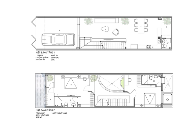
Ở tầng trệt, kiến trúc sư không bố trí vách ngăn giữa chỗ để xe và phòng khách mà chỉ dùng chậu cây và hệ lam gỗ với mục đích làm rộng không gian, giải phóng tầm nhìn. Chỗ để xe đủ cho hai chiếc xe hơi, phòng khi bạn bè tới thăm.

Về phương ngang, cầu thang một vế được ép vào một bên nhà.

Phía sau chỗ để xe, phòng khách thông với khu vực bếp - phòng ăn, tạo sự liền mạch và rộng rãi.

Về chiều đứng, kiến trúc sư bố trí khoảng thông tầng giữa nhà. Ban đầu, chủ nhà lo khoảng thông tầng choán chỗ và nguy hiểm song lúc nhà hoàn thành thì rất ưng ý.

Khoảng thông tầng được thiết kế theo đường cong, chiếm khoảng 15% diện tích nhà.

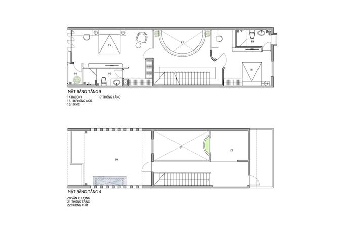
Khoảng thông tầng giúp căn nhà đầy ánh sáng nhưng không bị nắng gắt. Gia chủ không cần dùng đèn điện cho tới 17h, đôi khi đến 18h nhà vẫn đủ sáng. Đây cũng là điểm gia chủ hài lòng nhất.

Cũng nhờ khoảng thông tầng mà tất cả bốn phòng ngủ đều có cửa sổ ở hai bên. Phía hướng ra thông tầng, kiến trúc sư không xây tường mà làm vách và cửa kính kết hợp với rèm để lấy nắng, gió đồng thời tăng sự kết nối. Khi cần riêng tư, người ở chỉ cần kéo rèm lại.

Tiếp xúc với thiên nhiên bên ngoài và thông tầng bên trong, các phòng ngủ đối lưu khí tốt và tạo sự giao lưu giữa các thành viên trong gia đình.

Nhà vệ sinh dùng kính mờ cũng tận dụng được ánh sáng và gió nên khô ráo, kháng khuẩn.

Khoảng thông tầng còn tạo ra sự sinh động và mềm mại cho căn nhà, tránh sự đơn điệu khi toàn bộ công trình và lan can sắt đều sơn trắng để giảm chi phí.

Ở mỗi vị trí, khoảng thông tầng và hành lang lại đem tới những góc nhìn khác nhau.

Mặt bằng tầng một và tầng hai.

Mặt bằng tầng ba và tầng bốn.

Mặt bằng mái.

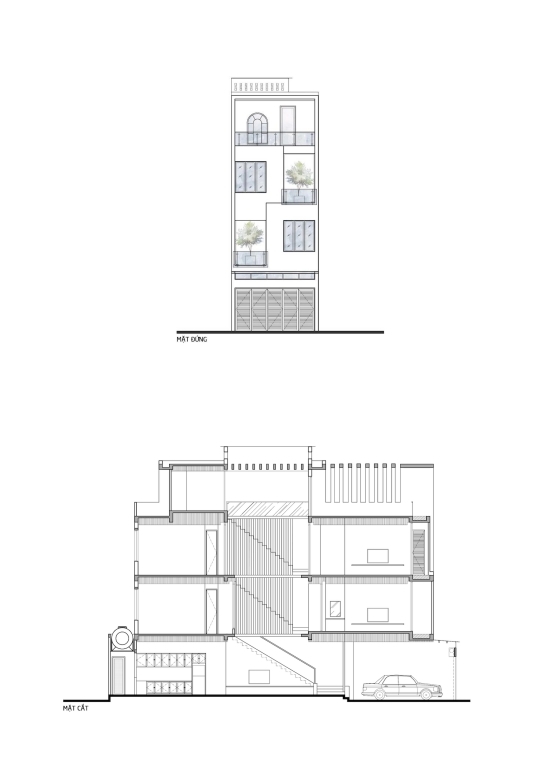
Mặt đứng và mặt cắt công trình.
Với mẫu nhà phố này maxxCons hi vọng sẽ là một mẫu nhà đáng tham khảo cho quý khách sắp chuẩn bị xây tổ ấm cho mình
Theo Vnexpress