Giới thiệu độc giả mẫu thiết kế nhà ống 2 tầng 145m2 với hệ mái Nhật có độ dốc hợp lý giúp thoát nước tốt, tăng khả năng thích nghi của ngôi nhà với thời tiết mưa nhiều tại địa phương.

Thiết kế nhà đẹp 2 tầng có diện tích xây dựng 145 m2, nằm trên khu đất rộng 250 m2 ở phường Tân An, TP Buôn Ma Thuột, Đăk Lăk. Phía trước, sau và bên hông công trình đều được bố trí sân vườn để tạo cảnh quan xanh mát.

Công trình được thiết kế và thi công hoàn thiện trong thời gian 1 năm hiện nay đã đi vào sử dụng. Mặt tiền của ngôi nhà quan sát với cự li gần cứ ngỡ như đứng trước ngôi biệt thự hiện đại nghỉ dưỡng bên Mỹ.
Để phù hợp với điều kiện thời tiết mưa nhiều tại địa phương, kiến trúc sư đã chọn phương án thiết kế mái ngói Nhật với phần chóp nhọn đặc trưng, cùng độ dốc phù hợp giúp thoát nước tốt.

Khu vực ban công tầng hai cũng được thiết kế hệ mái riêng bằng bê tông cốt thép, sau đó ốp tấm xi măng giả gỗ, giúp che mưa nắng và chống nóng. Phía trên khoét lỗ để lấy ánh sáng cho cây phát triển, đồng thời tạo điểm nhấn cho tổng thể công trình.
Riêng hướng nắng chiếu từ phía Tây được xử lý bằng việc bổ sung khoảng đệm cây xanh, không bố trí cửa sổ để tránh hấp thụ nhiệt.

Trước nhà là khu vực sân vườn và gara. Lối vào được lợp mái hiên dốc để thoát nước mưa, che mát và bố trí hệ đèn chiếu sáng.

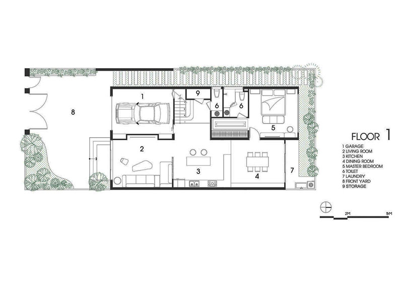
Ngôi nhà có tổng diện tích mặt sàn là 290 m2, phân chia thành 3 phòng ngủ dành cho gia đình 3 thế hệ. Tầng một gồm phòng khách liền bếp, phòng ngủ chính dành cho ông bà và các không gian phụ trợ.
Khoảng sân vườn trước và sau được kết nối với bên trong nhà thông qua hệ cửa kính rộng mở, nhằm mang đến sự thoáng đãng và gần gũi thiên nhiên.

Nội thất của ngôi nhà được thiết kế phong cách hiện đại. Phòng bếp rộng rãi, đầy đủ tiện nghi để đáp ứng nhu cầu của các thành viên trong gia đình. Ngoài bàn ăn, kiến trúc sư cũng bổ sung thêm bàn đảo để gia chủ có thể thưởng thức món ngon tại bếp.

Kệ úp bát đĩa có lắp đặt hệ ray trượt nâng hạ, giúp cả gia đình, đặc biệt là các thành viên lớn tuổi thuận tiện sinh hoạt.

Tất cả 3 phòng ngủ đều có ban công hoặc cửa sổ hướng ra sân vườn, đi kèm với hệ cửa lớn để tạo sự kết nối giữa không gian trong nhà - ngoài trời.

Mặt bằng bố trí nội thất không gian tầng 1

Tầng 2 gồm 2 phòng ngủ, phòng làm việc, không gian sinh hoạt chung của gia đình và phòng thờ.
Riêng góc sinh hoạt chung được kết nối với hành lang rộng rãi, tạo cảm giác ấm cúng nhưng không bí bách.

Phòng ngủ con được thiết kế không gian thoáng và đủ sáng. Hàng ghế thư giãn cạnh cửa sổ là nơi các bạn nhỏ có thể đọc sách hoặc thư giãn.

Nhờ hệ cửa kính sát trần, phòng làm việc luôn ngập tràn ánh sáng, nhưng vẫn đủ yên tĩnh để tăng sự tập trung.

Mặt bằng bố trí tầng hai