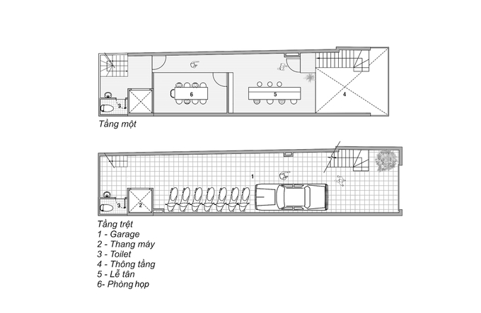
Gia chủ là một giám đốc doanh nghiệp đã chọn giải pháp kết hợp căn nhà và văn phòng công ty, với hai luồng giao thông để đảm bảo riêng tư.

Trong bối cảnh giá thuê văn phòng ngày càng đắt đỏ, giám đốc một công ty thiết kế ở quận Tân Phú chọn giải pháp kết hợp văn phòng làm việc và nơi ở trong cùng một căn nhà rộng 86 m2.

Ngôi nhà năm tầng, hướng Tây, hứng nhiều nắng nóng. Để tránh nắng gắt mà vẫn đảm bảo sự thông thoáng, các kiến trúc sư bố trí hệ lam ngang và lớp cây xanh ở mặt tiền công trình.

Những chậu hoa giấy tạo điểm nhấn trên nền trắng của hệ lam.

Cũng nhờ hệ lam mà khi lên đèn buổi tối, công trình càng thêm nổi bật.

Bên trong nhà, để đảm bảo sự riêng tư và an toàn cho không gian ở, kiến trúc sư tạo ra hai luồng giao thông riêng biệt. Các tầng văn phòng dùng thang bộ trước và sau nhà. Gia chủ sử dụng thang máy và thang bộ riêng.

Tầng trệt là chỗ để xe. Hai tầng trên làm văn phòng.

Không gian làm việc được bố trí để tận dụng lại bàn ghế, kệ công ty có sẵn.

Bên cạnh đó, kiến trúc sư đặt thêm nhiều mảng kính và cây xanh, vừa để lấy ánh sáng tự nhiên vừa tạo cảm giác thư giãn khi làm việc.

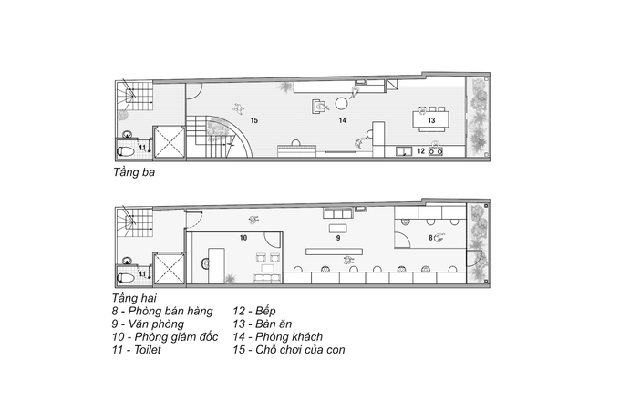
Không gian ở phía trên dành cho gia đình giám đốc gồm vợ chồng anh và hai con gái.

Để các em bé có chỗ chơi và yêu ngôi nhà của mình hơn, kiến trúc sư biến những không gian thường bị bỏ quên như gầm cầu thang thành khu thư giãn, đọc sách.

Lấy cảm hứng từ màu sắc logo công ty của người bố, nhóm thiết kế sử dụng màu vàng làm điểm nhấn trên nền màu trắng và xám để phối màu cho toàn bộ căn nhà. Màu sắc rực rỡ của nội thất tạo sự tương phản với màu trắng bên ngoài nhà.

Kiến trúc sư cũng đưa vào những món nội thất thông minh như chiếc bàn gập ở gần bếp. Nhờ đó, người mẹ có thể trông con học bài ngay cả khi nấu nướng.

Với hệ cửa kính lớn phía trước và sau công trình cùng các lỗ thông tầng trên mái, mọi không gian trong nhà đều đầy nắng, gió.

Chi phí xây dựng công trình khoảng ba tỷ đồng.

Mặt bằng tầng trệt và tầng một.

Mặt bằng tầng hai và tầng ba.

Mặt bằng tầng bốn và tầng năm.
Theo Vnexpress