Công trình lấy cảm hứng từ kiến trúc nhà rông Tây Nguyên và trường Cao đẳng Sư phạm Đà Lạt, gợi gia chủ nhớ về thời thơ ấu.

Căn nhà trên mảnh đất 7 x 21 m ở Đức Trọng, Lâm Đồng dành cho gia đình đôi vợ chồng và một đứa con ba tuổi. Gia chủ sinh năm 9x nên mong muốn căn nhà thể hiện cá tính trẻ trung với mức đầu tư vừa phải.

Từng có thời gian sống ở Đà Lạt thuở nhỏ, gia chủ còn mong căn nhà giữ được cái hồn của những công trình xưa cũ và mang nét văn hóa địa phương. Phương án của kiến trúc sư là thiết kế nhà hai tầng lấy cảm hứng từ nhà rông Tây Nguyên và trường Cao đẳng Sư phạm Đà Lạt do người Pháp xây dựng.

Nhìn từ phía ngoài, ngôi nhà đã thể hiện được những nét đặc trưng của hai công trình này qua mái nhọn và tường gạch.

Nhờ hình khối vuông vắn và hiện đại hơn nguyên mẫu, công trình phù hợp với độ tuổi của gia chủ cũng như xu thế kiến trúc ngày nay. Màu trắng và màu gạch đỏ của mặt tiền giúp công trình nổi bật mà vẫn hòa hợp với bối cảnh xung quanh.

Ngoài mong muốn căn nhà gợi nhớ nét xưa cũ, gia chủ còn muốn tổ ấm thông thoáng nên kiến trúc sư bố trí nhiều khe hở, giúp không khí lưu thông.

Để tiết kiệm chi phí cho gia chủ, nội thất được thiết kế vừa đủ đáp ứng nhu cầu sử dụng.

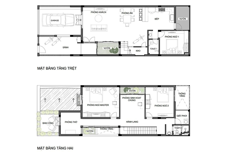
Nhà có bốn mảnh vườn nhỏ, vừa tăng mảng xanh cho công trình, vừa kết hợp thông tầng đưa ánh sáng đến mọi góc nhà.

Cũng nhờ các mảnh vườn nhỏ và thông tầng mà không gian trong nhà được kết nối với nhau.

Người ở cũng dễ dàng nhìn thấy nhau và tương tác qua lại.

Khí hậu ở Đức Trọng ôn hòa, nhiệt độ trung bình 18-22 độ nhưng có nhiều ánh sáng. Để tận dụng ánh nắng tự nhiên, kiến trúc sư bố trí các ô cửa lớn ở cả không gian sinh hoạt chung lẫn phòng ngủ riêng tư. Nhờ đó, nhà sáng, ấm và tiết kiệm năng lượng.

Bản vẽ bố trí mặt bằng công trình. Chi phí hoàn thiện công trình khoảng 1,85 tỷ đồng.
Theo vnexpress