Thiết kế biệt thự hiện đại đơn giản nhưng độc đáo và đầy tiện nghi, các bạn không thể bỏ qua mẫu thiết kế tưởng chừng kín đáo nhưng lại vô cùng độc lạ như này. Dưới đây maxxCons giới thiệu với quý khách hàng tham khảo mẫu thiết kế biệt thự 3 tầng hiện đại tiện nghi
Mặt tiền mẫu biệt thự hiện đại có cấu trúc đơn giản kín đáo

Nhìn tổng thể ngoài mặt tiền vào mẫu biệt thự hiện đại ngôi nhà được đan xen các khối hình hộp như được phân chia chức năng của từng không gian. Mặt tiền như được ốp gạch tạo những nét mộc độc đáo đơn xơ và thân thiện.

Nhìn từ góc nghiêng của ngôi nhà kín đáo riêng tư và phối hợp hài hòa giữa các không gian

Ngôi nhà không có cổng lớn thay vào đó là không gian đỗ xe (Gara ô tô) với lối vào nhà chính cửa được sơn ốp đá đen sang trọng.
Bố trí không gian trong ngôi biệt thự hiện đại tiện nghi thư giãn và thoáng mát

Không gian thông thoáng ngoài trời trong khu nhà ở được sắp xếp với bếp sưởi và bàn ghế thư giãn bao quanh là những khóm cây tiểu cảnh xinh xắn tô điểm cho không gian vườn trong nhà thêm sinh động và ấm cúng

Không gian bể bơi nơi thư giãn được sắp đặt với lối cầu thang đi lên các tầng. Không gian kín đáo yên bình và được che chắn bởi tấm kính lớn trong không gian giếng trời của ngôi nhà

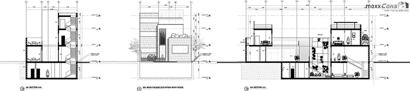
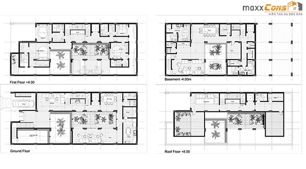
Bản vẽ chi tiết mặt đứng, mắt cắt và mặt bằng công năng biệt thự hiện đại
Bản vẽ mặt đứng à mặt cắt của ngôi biệt thự hiện đại đơn giản

Bản vẽ chia công năng mặt bằng các tầng

Trên đây là toàn bộ thiết kế kiến trúc và mặt bằng chi tiết mẫu biệt thự hiện đại đơn giản mà maxxCons muốn giới thiệu với quý khách hàng tham khảo để có thêm không gian ấm cúng và đẳng cấp trong chính ngôi nhà của mình. Để thiết kế thi công kiến trúc nhà trọn gói và có ý tưởng độc đáo về các mẫu kiến trúc nhà đẹp hãy liên hệ ngay mới chúng tôi để được tư vấn miễn phí bạn nhé!
>>>Xem ngay: Biệt thự nghỉ dưỡng ai cũng si mê
>>>Xem ngay: 96 mẫu biệt thự hình khối không thể bỏ qua