Căn biệt thự hai tầng, với tổng diện tích sử dụng khoảng 240m², là nơi an cư lý tưởng cho một gia đình trẻ gồm cặp vợ chồng và hai con (một trai, một gái). Dựa trên sở thích và phong cách sống của gia chủ, đội ngũ kiến trúc sư MaxxCons đã chọn thiết kế biệt thự đẹp theo sự kết hợp hài hòa giữa tân cổ điển và hiện đại, mang đến không gian sống thẩm mỹ cao nhưng vẫn đầy đủ tiện nghi.

Kiến Trúc Tân Cổ Điển Và Nội Thất Hiện Đại - Sự Kết Hợp Độc Đáo
Phần kiến trúc của biệt thự giữ nguyên nét đẹp đặc trưng của phong cách tân cổ điển, với những đường nét tinh xảo và sang trọng. Khối nhà được xây lùi vào để tạo ra khoảng sân rộng phía trước, phục vụ như một không gian đa năng: vừa là nơi để xe, vừa là chỗ vui chơi thoải mái cho trẻ nhỏ.

Nội thất bên trong lại mang phong cách hiện đại với nhiều điểm nhấn tinh tế. Đội ngũ KTS đã sử dụng các đường cong mềm mại trên trần và tường để tạo cảm giác thoải mái, thư giãn cho không gian sinh hoạt chung.
Không Gian Tầng 1 - Sáng Tạo Và Tinh Tế
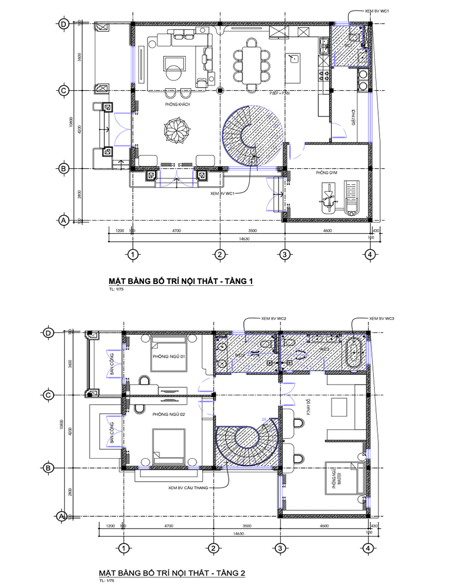
Tầng một được bố trí thành không gian sinh hoạt chung, bao gồm phòng khách và khu vực bếp - ăn, với gam màu sáng làm chủ đạo. Nội thất chủ yếu sử dụng gỗ công nghiệp sơn trắng, kết hợp cùng các chất liệu sang trọng như đá tự nhiên và inox, tạo nên điểm nhấn nổi bật cho không gian. Chẳng hạn, chân ghế bàn ăn và nẹp tủ đảo bếp đều sử dụng inox sáng bóng, làm tăng thêm vẻ hiện đại và đẳng cấp.




Hệ tủ bếp được thiết kế với nhiều khoang chứa đồ rộng rãi, giúp không gian bếp luôn gọn gàng và ngăn nắp. Đặc biệt, cầu thang sắt uốn cong với các bậc ốp đá, được chiếu sáng bằng đèn LED và kết hợp với đèn thả thông tầng, là điểm nhấn tinh tế của không gian phòng khách và bếp, mang lại sự ấm cúng và hiện đại.
Không Gian Nghỉ Ngơi - Tiện Nghi Và Thư Giãn Tối Đa
Phòng ngủ chính: Được thiết kế với nội thất gỗ công nghiệp sơn trắng, kết hợp cùng giấy dán tường và các đồ nội thất rời cùng tone màu, tạo nên không gian sang trọng và tinh tế. Phòng ngủ còn tích hợp khu thay đồ tiện nghi, mang đến không gian nghỉ ngơi và thư giãn tối đa cho cặp vợ chồng.




Phòng tắm: Đặc biệt, bồn tắm nằm được bố trí có tầm nhìn thẳng ra ao sen, giúp gia chủ tận hưởng những phút giây thư giãn đẳng cấp và gần gũi với thiên nhiên.
Không Gian Phòng Ngủ Của Trẻ - Thế Giới Sắc Màu Và Sáng Tạo
Phòng bé gái: Được thiết kế với tone màu hồng - trắng đáng yêu, theo đúng sở thích của bé. Những chi tiết trang trí ngộ nghĩnh không chỉ tạo nên không gian vui chơi, mà còn đảm bảo đầy đủ các khu vực học tập và nghỉ ngơi.

Phòng bé trai: Mang tone màu xanh - trắng tươi mát, phòng ngủ của bé trai ưu tiên nội thất nhỏ gọn và giải pháp lấy sáng tự nhiên, giúp tạo không gian thoải mái, năng động cho trẻ phát triển.
Biệt thự không chỉ là nơi sinh sống mà còn là không gian mang lại sự thư giãn, tiện nghi và đẳng cấp. MaxxCons luôn cam kết tạo ra những thiết kế biệt thự đẹp và phù hợp nhất với nhu cầu của khách hàng, mang đến giá trị sống hoàn hảo cho mỗi gia đình.