Kiến trúc maxxCons giới thiệu với bạn đọc mẫu biệt thự hiện đại kết hợp sân vườn và hồ bơi với hai tầng công năng mang lại vẻ đẹp kỳ diệu và độc đáo tại không gian sang thoáng mát ở đồng quê. Căn biệt thự được thiết kế hình chữ L, đồng thời giảm cột và tường ngăn, thay vào đó là kính để tối ưu tầm nhìn hướng hồ.

Căn biệt thự có 2 tầng nổi và một tầng bán hầm, được xây dựng trên khu đất rộng 1.000 m2 tại Yên Bài, Ba Vì, Hà Nội. Đây là nơi nghỉ dưỡng cuối tuần của gia chủ, hay mời bạn bè đến chơi vào các dịp đặc biệt.
Khu đất có địa hình dốc thoải, phía trước giáp với con đường dẫn vào sân golf Yên Bài, phía sau nhìn ra hồ nước. Trước khi thuê đơn vị thiết kế và thi công, gia chủ đã tự triển khai sơ bộ phần móng.

Đằng trước và sau công trình chênh lệch cốt nền khoảng 2 m. Để khắc phục độ dốc tương đối lớn, kiến trúc sư đã đưa ra 3 giải pháp gồm: Bố trí khoảng lùi ở mặt trước để tạo cảnh quan hồ koi, chòi nghỉ; hướng các khối chức năng về phía hồ, bám theo độ dốc của địa hình; tận dụng hướng gió để lưu thông không khí.

Công trình có bố cục hình chữ L, để tận dụng diện tích đất và kết nối với các tiện ích. Để tối ưu tầm nhìn hướng hồ, kiến trúc sư chọn phương án giảm thiểu các cột bê tông và tường ngăn, đồng thời sử dụng kính cho lan can và cửa vách.
Công trình được thiết kế một phần vươn khoảng 5 m, tạo khoảng lùi chắn nắng ở 2 hướng Đông - Tây. Một số ít không gian chịu nắng sẽ dùng rèm che.

Mặt sau nhà hướng ra hồ tự nhiên với khoảng sân vườn rộng rãi và khu nướng BBQ để tổ chức tiệc ngoài trời.
Tầng bán hầm được bố trí một bể cân bằng để lưu trữ và xử lý nước tràn của bể bơi, phòng kỹ thuật, phòng chứa rượu vang và hát karaoke.

Kiến trúc sư đã thiết kế khoảng mở lớn ở tầng một để nối liền không gian trước - sau, vừa là gara đỗ xe, vừa giúp đối lưu không khí, đưa gió từ hồ nước thổi qua sân vườn, bể bơi và tiểu cảnh hồ cá koi tới chòi nghỉ ở mặt trước.

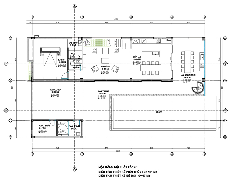
Mặt bằng công năng tầng 1 gồm:
+Khu vực trong nhà với phòng chức năng :Phòng khách, bếp ăn, gara ô tô, Phòng ngủ, 2 wc, phòng máy phát, phòng tắm tráng
+ Khu vực bên ngoài: gồm sân trong tiểu cảnh, bể bơi

Tổng diện tích xây dựng của biệt thự là 600 m2. Trong đó, tầng một gồm phòng khách, bếp trong nhà và ngoài trời, sân vườn, bể bơi, một phòng ngủ có vệ sinh riêng và một phòng vệ sinh chung.
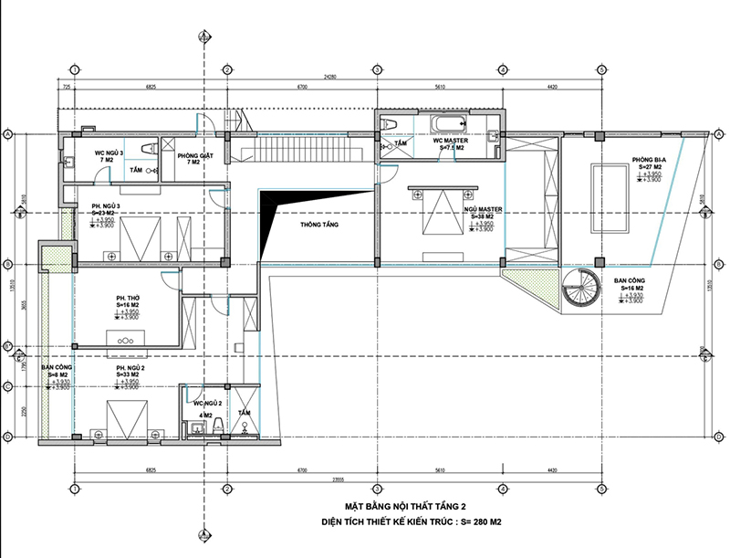
Tầng 2 có một phòng ngủ chính bao gồm khu thay đồ và nhà tắm có bồn, 3 phòng ngủ, không gian giặt phơi và một phòng billard có lối đi riêng ngoài trời.

Phòng khách ở dưới khoảng thông tầng, với tầm nhìn hướng ra hai phía nhờ vách kính sát trần.

Hai khu bếp trong nhà và ngoài trời được đặt cạnh nhau nhằm thuận tiện cho gia chủ khi cần tổ chức các buổi tiệc có đông người tham gia.

Ngay cạnh khu bếp ngoài trời là cầu thang ngoài trời dẫn lên phòng billard ở tầng 2.

Mặt bằng bố trí tầng 2 không gian bao gồm: 2 phòng ngủ cùng wc, 1 phòng ngủ master 1 phòng thờ, ban công và phòng giặt.
Công trình được thiết kế và thi công hoàn thiện trong 8 tháng. Tổng chi phí khoảng 10 tỷ đồng bao gồm cả chi phí xây dựng, hoàn thiện nội thất và cảnh quan sân vườn.
Nguồn sưu tập Internet